Wheatfield Road, Gorgie, EH11 2PS

Well-presented one bedroom flat in convenient city centre location. This attractive first floor property is presented to the market fully furnished.

Overview

  • Price: 975 
  • Bedrooms:
  • Bathrooms:
  • Deposit: 1175 
  • Area: Gorgie 
  • Available From: 08/12/2025 

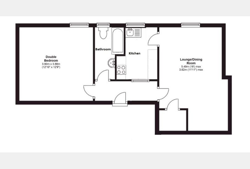
This bright and freshly presented first floor apartment forms part of a traditional sandstone tenement within Edinburgh's popular and sought after Gorgie district. Presented to the market fully furnished, the accommodation has an internal layout comprising – reception hall with doors to all rooms; lounge with front facing window, storage cupboard and dining recess; a modern fitted kitchen with appliances; a large front facing double bedroom and a contemporary bathroom with electric shower. Further benefits include- modern gas central heating; a secure entry phone system and comprehensive double glazing. Externally there is a shared garden area to the rear and unrestricted on street parking to the front of the building.

The Gorgie district of Edinburgh is ideally placed for access to the main commercial and financial heart of the city. Local shops on Gorgie Road offer a comprehensive range of services and other amenities including banking, Post Office facilities, dentists and doctors. There is a large Sainsbury's supermarket just off Westfield Road, a Marks and Spencer Foodhall and other outlets at Edinburgh West Retail Park off Chesser Avenue. Leisure and recreational opportunities nearby include Saughton Public Park and Fountain Park Leisure Complex. Napier University at Sighthill and the central universities are within easy reach. Excellent bus and tram links provide easy, quick access to the City Centre and beyond, whilst the City Bypass and motorway networks are all easily accessible by car.

Council tax band: B, EPC rating: C Landlord Registration Number: 1131816/230/05111. Letting Agent Registration Number: 2001001.

Features

  • Double Glazing
  • Fridge Freezer
  • Microwave
  • Secure Entryphone
  • Shower
  • Washing Machine